

























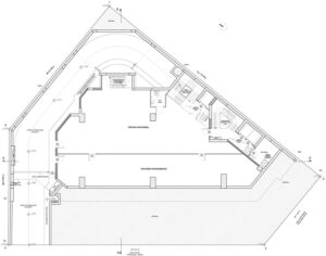
PROJECT: OFFICE AND SHOP BUILDING
LOCATION: ARGYROUPOLI, ATHENS
TYPE: COMMERCIAL AND OFFICE BUILDING
START OF CONSTRUCTION: JUNE 2023
AREA: 3.001 sq.m.
ENERGY EFFICIENCY CLASS: Α++
AVAILABLE FOR RENT
PARKING B' BASEMENT TOTAL AREA: 835 sq.m.
PARKING SPACES: 21
ELECTRIC VEHICLE CHARGING POINTS
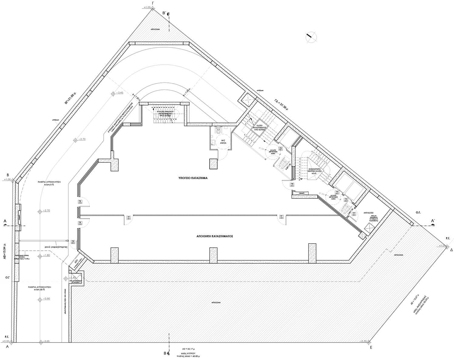
WAREHOUSES TOTAL AREA: 51 sq.m.
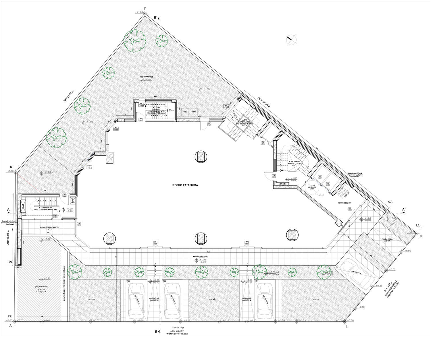
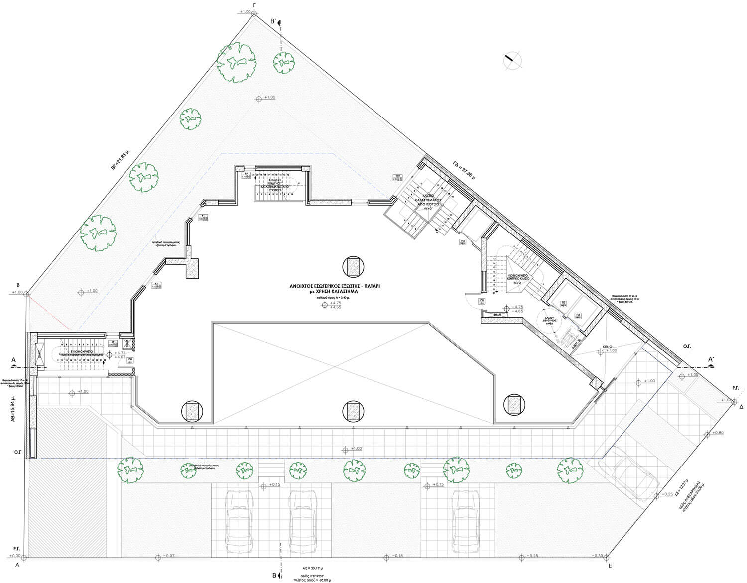
3 LEVEL STORE TOTAL AREA: 890 sq.m.
1st BASEMENT STORE: 335 sq.m.
GROUND FLOOR: 340 sq.m.
MEZZANINE: 215 sq.m.
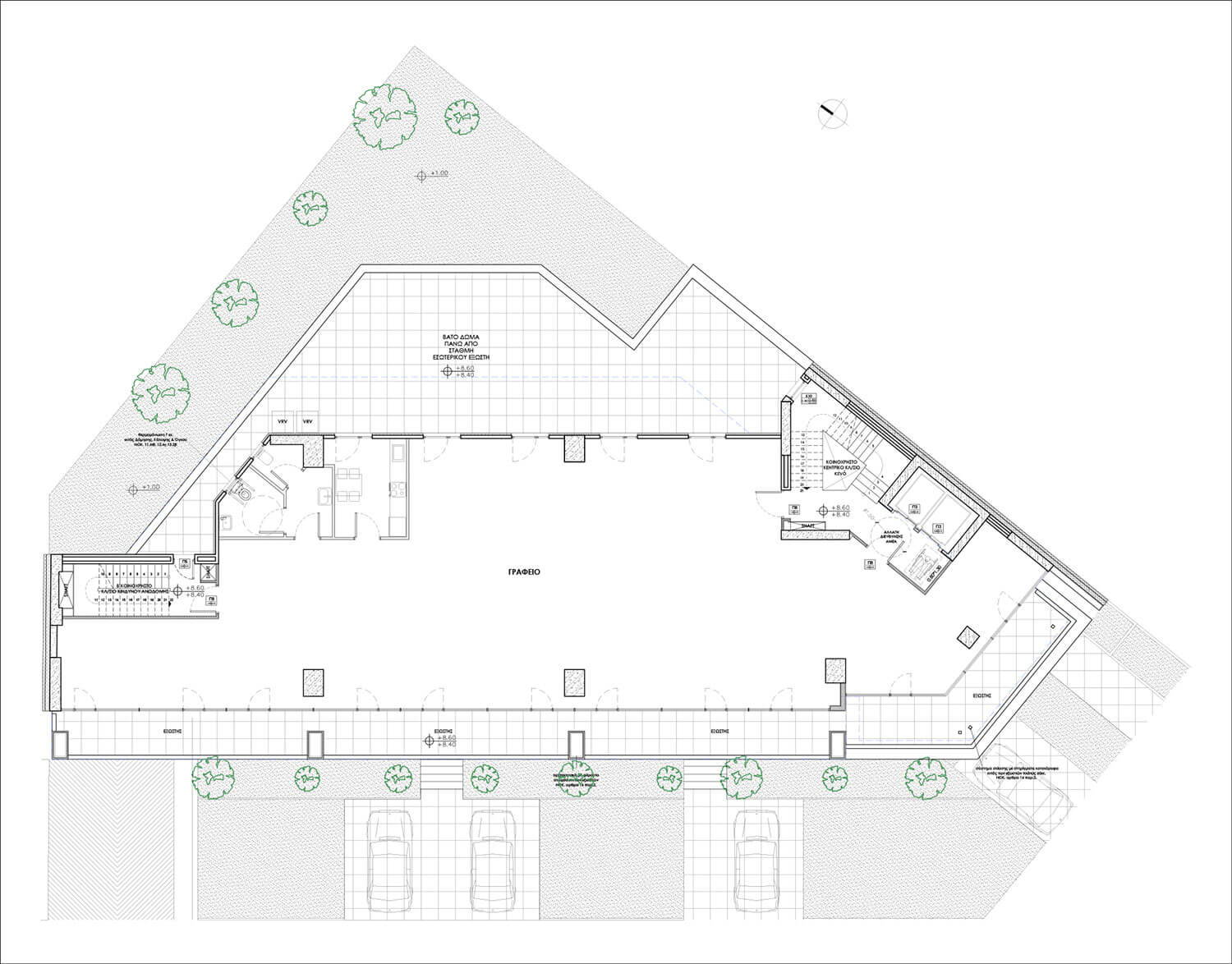
4 LEVEL OFFICES TOTAL AREA: 1.080 sq.m.
1st FLOOR OFFICE AREA: 345 sq.m.
2nd FLOOR OFFICE AREA: 340 sq.m.
3rd FLOOR OFFICE AREA: 335 sq.m.
4th FLOOR OFFICE AREA: 60 sq.m.
BUILDING SPECIFICATIONS - QUALITY CHARACTERISTICS
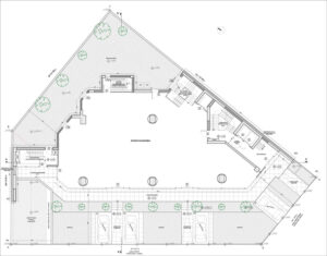
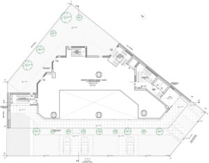
ENERGY CLASS & SUSTAINABILITY ELEMENTS - GREEN BUILDING
-
- Exterior thermal insulation 10 cm thick throughout the building.
-
- Exterior windows with thermal break in Akzo Nobel super resistant paint.
-
- Energy Glazing.
-
- Autonomous heating with Natural gas boiler (exhaust gas condensation).
-
- Rainwater collection tank in the basement for watering the garden.
-
- Electricity supply for electric car in each parking space.
-
- Energy Fireplaces in each apartment.
-
- LED lamps in public areas.
-
- Recycling of materials.
-
- Planting trees.
SECURITY
-
- Fire protection system for each property.
-
- Security doors both at the main entrance and each apartment entrance.
-
- Grounding.
-
- Pre-installation of alarm network.
-
- CCTV system.
EARTHQUAKE SHIELD
-
- Download Essays
-
- Concrete: C25 / 30.
50 Years of Experience
Who we are
Our company started its activity in the construction sector in the 1970s based in Athens.
Main activities in the private and public sector with projects throughout Greece.
Our headquarters in Athens are complemented by offices and partners throughout Greece and abroad.
